Dynamická energetická simulácia budovy s aplikáciou ekologickej modulárnej adaptívnej fasády
Přehrát audio verzi
Dynamická energetická simulácia budovy s aplikáciou ekologickej modulárnej adaptívnej fasády
00:00
00:00
1x
- 0.25x
- 0.5x
- 0.75x
- 1x
- 1.25x
- 1.5x
- 2x
Táto štúdia aplikuje dynamické simulačné metódy pre návrh energeticky efektívnych budov s dvojitou transparentnou fasádou. Cieľom je komplexne kvantifikovať vplyv dvojitej transparentnej fasády na vnútorné prostredie budovy z hľadiska vykurovania a chladenia. Článok porovnáva tepelnú pohodu a energetickú spotrebu dvoch variantov – s exteriérovými žalúziami a bez nich. Simulácia analyzuje parametre ako teplota vzduchu, relatívna vlhkosť, intenzita osvetlenia a energetickú spotrebu. Dôraz je kladený na identifikáciu potenciálu pre úspory energie spojené s tienením. Analýza sa zaoberá aj citlivosťou výsledkov na zmeny vstupných parametrov. Táto štúdia poskytuje cenné dáta pre náš interdisciplinárny výskum.
1. Úvod
V súčasnosti, v kontexte narastajúcej globálnej snahy o znižovanie energetickej náročnosti a minimalizáciu environmentálneho dopadu budov, sa adaptívne fasády stávajú čoraz dôležitejším prvkom v architektúre a stavebníctve. Tieto dynamické systémy, schopné reagovať na premenlivé vonkajšie podmienky, ponúkajú vhodné riešenia pre optimalizáciu vnútorného prostredia a zníženie spotreby energie [1–4].
Adaptívne fasády, vďaka svojej schopnosti prispôsobiť sa aktuálnym potrebám, predstavujú efektívny nástroj na zníženie nákladov spojených s vykurovaním, chladením a osvetlením budov. Ich implementácia prináša aj nové výzvy v oblasti návrhu a hodnotenia ich výkonnosti [3–5].
V tejto štúdii sa zameriavame na analýzu vplyvu použitia navrhovanej adaptívnej fasády na vnútorné prostredie administratívnej budovy, na kancelárie. Skúmame, ako vplyv geometrických parametrov ovplyvňuje výsledky simulácií a hodnotenie energetickej efektívnosti. Dôraz je kladený na dôležitosť vstupných údajov pre spoľahlivé posúdenie vplyvu adaptívnej fasády. Cieľom je prispieť k lepšiemu pochopeniu problematiky adaptívnych fasád a zdôrazniť význam presných vstupných údajov pre ich efektívny návrh a implementáciu.
2. Administratívna budova s modulárnou adaptívnou fasádou
Administratívne budovy sú neoddeliteľnou súčasťou našich miest a zohrávajú kľúčovú úlohu v ekonomickom a spoločenskom živote. Sú to miesta, kde sa sústreďuje hospodárska činnosť, kde sídlia firmy a organizácie a kde denne pracujú tisíce ľudí. Z hľadiska architektúry a dizajnu sú administratívne budovy často reprezentatívne a odrážajú aktuálne trendy v stavebníctve, pričom ich energetická efektívnosť a udržateľnosť sa stávajú čoraz dôležitejšími faktormi.
Dvojitá transparentná fasáda predstavuje inovatívne riešenie pre administratívne budovy, ktoré prináša množstvo výhod, no zároveň si vyžaduje dôkladné posúdenie z viacerých hľadísk. Pre potreby týchto posúdení bola vytvorená referenčná administratívna budova.
2.1 Modulárna adaptívna fasáda využívajúca obnoviteľné zdroje energie
Geometria novo-navrhovanej dvojitej transparentnej fasády (DTF) vychádza z rozmerov existujúcej jednoduchej transparentnej fasády, ktorá je osadená na experimentálnom zariadení v Centrálnych laboratóriách Stavebnej fakulty STU v Bratislave – Trnávke. Vnútorný plášť novo-navrhovanej fasády je totožný s plášťom jednoduchej fasády, ktorý je tvorený dvomi oknami s integrovaným krídlom. Okná sú zasklené izolačným trojsklom AGC Glass Thermobel TG Top s vysokou fyzikálnou kvantifikáciou (súčiniteľ prechodu tepla Ug = 0,6 W/(m2.K), celková priepustnosť slnečného žiarenia g = 53 %, svetelná priepustnosť TL = 75 %, index vzduchovej nepriezvučnosti Rw = 35 dB). Horná nepriehľadná parapetná časť vnútorného plášťa fasádneho elementu je uzavretá oceľovým pozinkovaným plechom, za ktorým sa nachádza tepelnoizolačná výplň elementu z minerálnej vlny (75 kg/m3).
Základným konceptom nového návrhu je dvojitá transparentná fasáda (Obr. 1, Obr. 2), ktorá je schopná reagovať a prispôsobiť sa podmienkam meniacej sa vonkajšej klímy. Zároveň by nemala negatívne vplývať na kvalitu vnútorného prostredia budovy. Koncept novej inovatívnej adaptívnej fasády je riešený modulovo a má atypický geometrický tvar. Vonkajší plášť fasády je svojou konštrukciou a tvarom prispôsobený optimálnemu sklonu solárneho kolektora α = 40° (plochý solárny kolektor orientovaný na južnú svetovú stranu).
Energiu slnečného žiarenia využíva viacerými spôsobmi. Prvým z nich je transformácia krátkovlnného slnečného žiarenia na dlhovlnné tepelné žiarenie vo fyzikálnom medzipriestore dvojitej transparentnej fasády. Tento spôsob má pozitívny vplyv na redukciu energetických tokov do jadra budovy, čo vedie k zníženiu tepelnej záťaže zo slnečného žiarenia v letnom období a eliminácii tepelných strát v období zimnom. Druhým spôsobom je využitie teplotne upraveného vzduchu vo fyzikálnom medzipriestore dvojitej fasády v zimnom období pre fasádnu rekuperačnú jednotku integrovanú vo fasádnom elemente. Tento spôsob má pozitívny dopad na zníženie potreby tepla na vykurovanie. Tretím spôsobom je využitie fototermálnej konverzie solárnej energie zo slnečných kolektorov ako zdroj tepla pre ejektorový chladiaci systém pre priame chladenie vnútorných priestorov budovy.
2.2 Referenčná administratívna budova
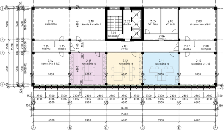
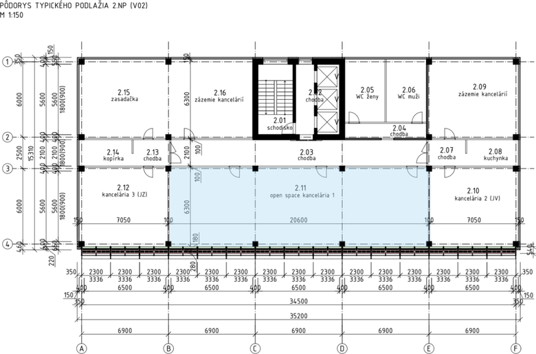
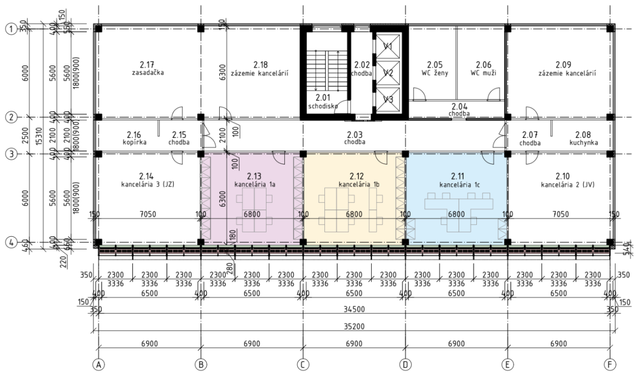
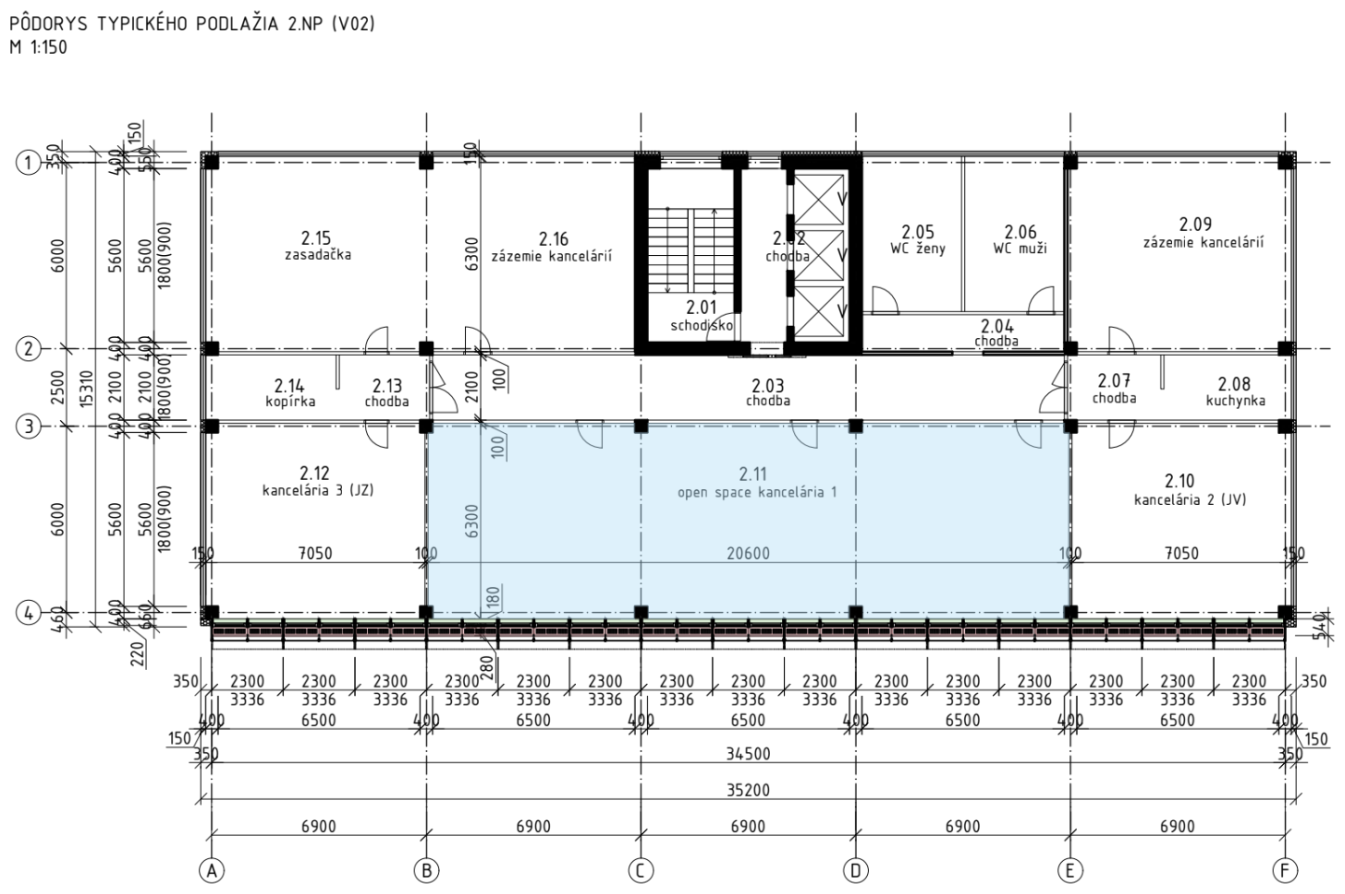
Referenčná administratívna budova vychádza z parametrov dvojitej transparentnej fasády. Pôdorys typického podlažia je vyhotovený v dvoch variantoch: s 3 referenčnými kanceláriami (Obr. 3) a s openspace kanceláriou (Obr. 4), ktorá zodpovedá rozmerom 3 referenčných kancelárií. Šírka jednej referenčnej kancelárie je prispôsobená 3 fasádnym modulom. Rozmerové parametre kancelárií sú zhrnuté v tabuľke č. 1 (Tab. 1).
| Rozmery | Plocha | Počet fasádnych modulov | |
|---|---|---|---|
| 3 referenčné kancelárie (rozmery 1 kancelárie) | 6,8 × 6,3 m | 42,84 m2 | 3 |
| Openspace kancelária | 20,6 × 6,3 m | 129,78 m2 | 9 |
Budova je tiež navrhnutá v dvoch výškových variantoch: posudzovaný variant so 7 nadzemnými podlažiami (Obr. 5) a s 15 nadzemnými podlažiami. Variant s 15 nadzemnými podlažiami bol dodatočne vytvorený pre potreby posúdenia z požiarneho hľadiska.
3. Dynamická simulácia
Cieľom energetickej dynamickej simulácie je zistiť kapacitu zariadení potrebných na vykurovanie a na chladenie. Na zistenie potreby tepla na vykurovanie a potreby tepla na chladenie bola vykonaná zjednodušená dynamická energetická simulácia, Heating design a Cooling design v 4 variantoch (Tab. 2). Simulácia bola prevedená v energetickom simulačnom programe DesignBuilder (EnergyPlus v. 9.4) [6]. Výpočty v Heating design sa vykonávajú s cieľom určiť veľkosť vykurovacieho zariadenia potrebného na splnenie najchladnejších zimných návrhových poveternostných podmienok, ktoré sa pravdepodobne vyskytnú v danej lokalite. Tieto výpočty sa tradične vykonávajú pomocou ustálených metód, ako sú tie, ktoré ponúkajú ASHRAE a CIBSE. Pri tomto výpočte je zadaná ustálená vonkajšia teplota (zimná návrhová vonkajšia teplota), rýchlosť a smer vetra. Do úvahy sa neberú solárne zisky ani vnútorné zisky. Výpočty v Cooling design sa vykonávajú s cieľom určiť kapacitu mechanického chladiaceho zariadenia, ktorá je potrebná na splnenie najteplejších letných návrhových poveternostných podmienok, ktoré sa pravdepodobne vyskytnú v danej lokalite. V zónach, ktoré nie sú mechanicky chladené, sa vypočítavajú voľne plávajúce teploty vrátane vplyvov prirodzeného alebo mechanického vetrania. Tieto výpočty sa tiež vykonávajú pomocou periodických ustálených metód, ako sú metódy admitancie a faktora odozvy, ktoré poskytujú CIBSE a ASHRAE. Pri tomto výpočte sú zadané periodické ustálené vonkajšie teploty (maximálne návrhové letné klimatické podmienky), žiadny vietor. Vo výpočte sú zahrnuté solárne zisky cez okná a vnútorné zisky od osôb, osvetlenia a iných zariadení [6].
| Model | Variant | Popis | |
|---|---|---|---|
| V01 | 3 referenčné kancelárie | V01a | S tienením v medzipriestore |
| V01b | Bez tienenia | ||
| V02 | Openspace kancelária | V02a | S tienením v medzipriestore |
| V02b | Bez tienenia |
V simulačnom programe DesignBuilder bol vytvorený energetický model 7podlažnej referenčnej budovy podľa dokumentácie (Obr. 6), v štyroch variantoch. Dvojitá transparentná fasáda budovy je orientovaná na južnú svetovú stranu. Pre základný výpočet bol zadaný jednoduchý HVAC systém (bez mechanického vetrania, len s infiltráciou).
3.1 Vstupné údaje
Na simulácie boli použité klimatické dáta pre Bratislavu a sú z typického meteorologického roku (TMR) s hodinovými klimatickými údajmi podľa údajov z STN 73 0540-3/Z1: 2025 [11].
Vstupné hodnoty súčiniteľa prechodu tepla pre obalové konštrukcie vychádzajú z rovnakej normy STN 73 0540-3: 2012/Z1: 2025 [11] a sú uvedené v tabuľke 3 (Tab. 3). K hodnote súčiniteľa prechodu tepla Ur2 je prirátaná hodnota ΔU = 0,02 W/(m2.K) reprezentujúca vplyv tepelných mostov. Hodnoty zasklenia sú odvodené z parametrov uvedených v časti 2.1 Modulárna adaptívna fasáda využívajúca obnoviteľné zdroje energie. Tieniace prvky v miestnostiach vo variantoch V01a a V02a sú umiestnené v medzipriestore a majú parametre exteriérových horizontálnych žalúzií Rs = 0,20, As = 0,80 a Ts = 0,00. Tieto žalúzie sú automaticky ovládané na základe intenzity slnečného žiarenia. Akonáhle hodnota slnečného žiarenia na okne dosiahne 200 W/m2, žalúzie sa automaticky aktivujú.
| Konštrukcia | U* [W/(m2.K)] |
|---|---|
| Obvodová stena | 0,22 |
| Podlaha na teréne | R = 2.50 (m2.K)/W |
| Strešný plášť – plochá strecha | 0,15 |
Prevádzkový čas objektu je od 7:00 do 16:30 počas pracovných dní [10]. Od prevádzkového času sú odvodené prevádzkové rozvrhy pre vstupné údaje v tabuľke č. 4.
Pre jednotlivé zóny modelu boli zadané normalizované vstupné údaje podľa vyhlášky 35/2020 Z. z. (364/2012 Z. z.) pre administratívne budovy [7–10]. Každý typ zóny má určené, či je alebo nie je daná zóna vykurovaná/chladená; teploty set point na spustenie vykurovania alebo chladenia; počet osôb (obsadenosť); metabolické teplo na osobu; hodnoty umelého osvetlenia; tepelné zisky z elektrických zariadení a hodnotu vetranie (1/h). Hodnoty pre typickú zónu – kanceláriu, sú uvedené v tabuľke č. 4 (Tab. 4).
| Vykuro-vanie | Chlade-nie | Vnútorná požadovaná teplota v zime | Vnútorná požadovaná teplota v lete | Obsadenosť na užívateľa [m2/osoba] | Vnútorné zisky [W/m2] | Infiltrácia | |||
|---|---|---|---|---|---|---|---|---|---|
| Osvetle-nie | Užívatelia | Elektrické prístroje | |||||||
| Kancelária | Áno | Áno | 20 °C | 26 °C | 20 | 5,0* | 4,0 | 7,26 | 0,7 |
| * Podľa projektu osvetlenia alebo realizácie. Tento zisk sa ešte modifikuje pri výpočte hodnotami činiteľov Fo, Fc a FD podľa typu zóny a zvolenej regulácie a dostupnosti denného osvetlenia | |||||||||
4. Výsledky energetickej simulácie
Táto kapitola sumarizuje výsledky energetickej simulácie s hodinovým časovým krokom pre definované miesta spotreby energetického hodnotenia (kancelárie). Tabuľka č. 5 (Tab. 5) poskytuje prehľad o energetickej náročnosti kancelárií v závislosti od výpočtového variantu.
Z výsledkov Heating design-u vyplýva, že tienenie neovplyvňuje potrebu tepla pre kancelárie, pretože solárne zisky sa neuvažujú, a teda je výsledná kapacita pre oba prípady (V01a a V01b, V02a a V02b) rovnaká. Kapacita referenčnej kancelárie vo V01 je 0,9 kW a kapacita openspace kancelárie je 2,5 kW.
Významným pasívnym tieniacim prvkom fasády je konzola vysunutá 1,3 m. Tá ovplyvňuje najmä solárne zisky v Cooling design-e, v letnom období. Z výsledkov Cooling design-u môžeme vidieť rozdiel 0,4 kW (24%) medzi variantom V01a a V01b a rozdiel 1,2 kW (24%) medzi variantami V02a a V02b.
Dynamická energetická simulácia pre návrhový letný týždeň (6. júl – 12. júl) potvrdila predpokladané výsledky. Pri zohľadnení všetkých vstupných faktorov sa potreba chladu pohybuje v intervale medzi 0,70 kW a 1,24 kW. Najväčší podiel ziskov predstavujú zisky zo slnečného žiarenia. V tomto prípade je to ale ideálny stav pre novo-navrhovanú fasádu, pretože veľké solárne zisky využíva solárny kolektor do okruhu pre ejektorové chladenie. Čím viac tepla sa do okruhu dodá, tým viac chladu pre kanceláriu vyrobí ejektorový stroj [12].
Je dôležité si uvedomiť, že uvedené hodnoty sú výsledkom simulácie s normalizovanými vstupnými údajmi (používajú sa pri energetickom hodnotení budov) a líšia sa od skutočných hodnôt v prevádzke, preto je pre takéto prípady vhodné vytvoriť simuláciu s reálnymi hodnotami overenými praxou.
5. Záver
Dynamická simulácia s normalizovanými vstupnými údajmi poskytla cenné informácie o energetických nárokoch budovy s dvojitou transparentnou fasádou v rôznych konfiguráciách. Výsledky simulácie potvrdili, že navrhovaná fasáda neohrozuje vnútorné prostredie kancelárií a predstavuje optimálne riešenie z hľadiska energetickej efektívnosti.
Simulácia tiež poskytla podklady pre ďalšiu optimalizáciu fasády a jej doplnkov, ako sú ejektorové chladenie či solárny kolektor. V budúcnosti je dôležité zamerať sa na vývoj metodík pre získavanie a spracovanie detailných vstupných údajov pre adaptívne fasády a validáciu modelov s reálnymi prevádzkovými dátami. To umožní lepšie pochopenie dynamických vlastností týchto systémov a ich vplyvu na energetickú efektívnosť budov.
V kontexte energetického posudzovania budov s adaptívnymi fasádami je dôležité si uvedomiť, že presnosť vstupných údajov má zásadný vplyv na spoľahlivosť predikcií. Preto je nevyhnutné venovať pozornosť detailnému zberu a spracovaniu dát, aby sa predišlo potenciálnym rizikám spojeným s používaním zjednodušených hodnôt. Len tak je možné dosiahnuť spoľahlivé hodnotenie vplyvu dvojitej fasády na energetickú bilanciu budov a efektívny návrh inovatívnych fasádnych systémov.
Poďakovanie
Tento výskum Tento výskum bol podporený Vedeckou grantovou agentúrou MŠVVŠ SR a SAV v projekte VEGA 1/0322/23: „Fasádne koncepty ako zdroj obnoviteľnej energie pre udržateľnú architektúru“ a Agentúrou na podporu výskumu a vývoja v projekte APVV-21-0144: „Vývoj a experimentálne overenie klimaticky adaptívnej transparentnej fasády s viacstupňovým využívaním obnoviteľných zdrojov energie pre nízkoexergetické sálavé systémy“.
Literatúra
- GHOLAMI, H., RØSTVIK, H. „Economic analysis of BIPV systems as a building envelope material for building skins in Europe.“ Energy. (2020). vol. 204. č. 117931. https://doi.org/10.1016/j.energy.2020.117931
- SHAHIN, X. H. S. M. „Adaptive building envelopes of multistory buildings as an example of high performance buildingskins,“ Alexandria Engineering Journal. (2019). vol. 58. no. 1, pp. 345–352.
https://doi.org/10.1016/j.aej.2018.11.013 - GRATIA, E. and DE HERDE, A. „The most efficient position of shading devices in a double-skin facade.“ Energy and Building. (2007). 39(3). 364–373. https://doi.org/10.1016/j.enbuild.2006.09.001
- ROIG, O., CUERVA, E., PARDAL, C., GUARDO, A., ISALGUE, A., LOPEZ-BESORA, J. „Thermal Assessment of a Ventilated Double Skin Facade Component with a Set of Air Filtering Photocatalytic Slats in the Cavity.“ Buildings 2023. (2023). 13, 272. https://doi.org/10.3390/buildings13020272
- ÜNLÜTÜRK, M. et al.: „The Effective Use of Daylight in Double Skin Facade Buildings.“ INTERNATIONAL GRADUATE RESEARCH SYMPOSIUM - IGRS’22. (2022).
https://www.researchgate.net/publication/375861477_The_Effective_Use_of_Daylight_in_Double_Skin_Facade_Buildings - Energetický simulačný program DesignBuilder v. 7.3.0.044
- Z. z. 555/2005, ZÁKON z 8. novembra 2005 o energetickej hospodárnosti budov a o zmene a doplnení niektorých zákonov.
- Z. z. 364/2012, VYHLÁŠKA Ministerstva dopravy, výstavby a regionálneho rozvoja Slovenskej republiky z 12. novembra 2012, ktorou sa vykonáva zákon č. 555/2005 Z. z. o energetickej hospodárnosti budov a o zmene a doplnení niektorých zákonov v znení neskorších predpisov.
- Z. z. 324/2016, VYHLÁŠKA Ministerstva dopravy, výstavby a regionálneho rozvoja Slovenskej republiky z 30. novembra 2016, ktorou sa mení a dopĺňa vyhláška Ministerstva dopravy, výstavby a regionálneho rozvoja Slovenskej republiky č. 364/2012 Z. z., ktorou sa vykonáva zákon č. 555/2005 Z. z. o energetickej hospodárnosti budov a o zmene a doplnení niektorých zákonov v znení neskorších predpisov.
- Z. z. 35/2020, VYHLÁŠKA Ministerstva dopravy a výstavby Slovenskej republiky z 11. februára 2020, ktorou sa mení a dopĺňa vyhláška Ministerstva dopravy, výstavby a regionálneho rozvoja Slovenskej republiky č. 364/2012 Z. z., ktorou sa vykonáva zákon č. 555/2005 Z. z. o energetickej hospodárnosti budov a o zmene a doplnení niektorých zákonov v znení neskorších predpisov v znení vyhlášky č. 324/2016 Z. z.
- STN 73 0540-3: 2012/Z1: 2025 Tepelno-technické vlastnosti stavebných konštrukcií a budov. Tepelná ochrana budov. Časť 3: Vlastnosti prostredia a stavebných výrobkov. Účinnosť január 2025.
- https://www.sjf.stuba.sk/sk/diani-na-fakulte/aktuality/fresnelove-solarne-kolektory-a-ejektorove-chladenie-chlad-z-tepla.html?page_id=6377
Odstínění významně prosklených fasád je problematikou, která do budoucna bude nabývat na významu. Jak z důvodů energetických, tak i kvůli významnému vlivu na kvalitu vnitřního prostředí. Tento článek se zabývá jedním z možných přístupů, jak zastínění prosklené fasády řešit. Je třeba si však uvědomit, že problematika má vícero hledisek. Je třeba vyřešit problémy se statikou objektu, respektovat požární hledisko a v neposlední řadě i dopad na architekturu objektu. Pro lepší představu vlivu navrhovaného řešení by bylo zajímavé, kdyby autoři uvedli i výsledky simulace objektu s jednoduchou fasádou bez vlivu navržené dvojité fasády. Což by mohl být návrh na další díl článku.
This study applies dynamic simulation methods for the design of energy-efficient buildings with double transparent facades. The aim is to comprehensively quantify the impact of double transparent facades on the internal environment of buildings in terms of heating and cooling. The article compares the thermal comfort and energy consumption of two variants – with and without exterior blinds. The simulation analyzes parameters such as air temperature, relative humidity, lighting intensity, and energy consumption. Emphasis is placed on identifying the potential for energy savings associated with shading. The analysis also addresses the sensitivity of the results to changes in input parameters. This study provides valuable data for our interdisciplinary research.









